文章出處:房產地帶 閱讀量: 發布時間:2022-07-19 00:29:22
在眾多城中村中
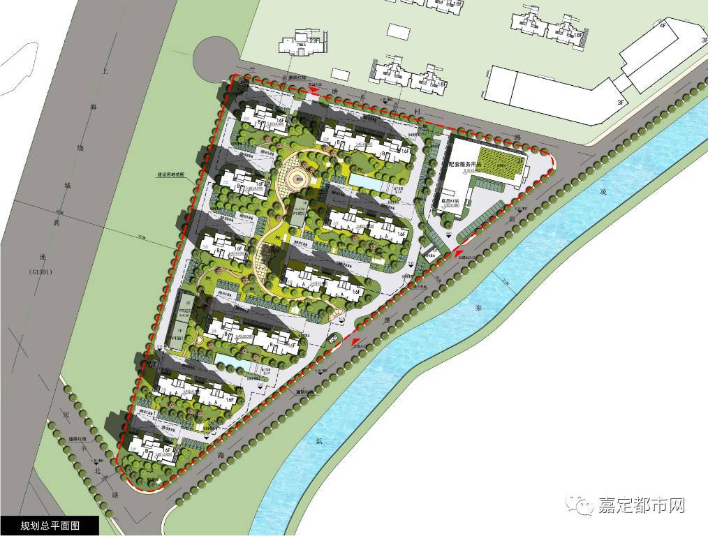
1、新合公司鄉親們樓房簽約率超98%、拆除率近99%。
2、復建安置區D、E、F、J樓盤復建安置房相關機構工程建設管理工作已全面性發動,E、F樓盤首期復建房已竣工。
3、6棟回遷房已完工,明年或需回遷。在眾多舊區中,潭村的擴建占地面積算相當“迷你”,但右側卻極為重要。
4、它在珠江新城的東邊,竟與廣州國際金融城相近。
5、2012年,錦舊改復[2012]10號文經正式核準提議開啟潭村擴建,當年8月擴建正式發布。
6、改建總工業用地占地8.34公頃,凈工業用地6.39公頃(計入發展規劃定出的花城大道1.95公頃)。
7、改擴建適用范圍內發展趨勢總占地17.62萬㎡,其中鄉親們房屋14.96萬㎡,集體物業管理2.63萬㎡。
8、整體規劃復建安隸地塊凈用地5.48公頃,復建安置占地面積27.34萬㎡(公建公共設施0.9萬㎡),平均凈容積率5.0,其中重修居民寫字樓18.16萬㎡,容積率4.57。

超高層建筑的建筑成本更高
1、本報記者了解到,去年8 月底,中海地產的另外兩幅廣鋼新城區工業用地也在市規劃局的官網上公 普了上述投資項目發展規劃,兩宗地皮依次是、 房地產項目。
2、從規劃圖右圖,同樣是以 摩天大樓的洋房屋苑和回遷房見長,主要包括2 棟59 層樓的寫字樓與1 棟47 七層的回遷房。
3、相比之下起普通的領導層洋房建筑群,摩天大樓建筑群的建筑風格開發成本更高。
4、從宅基地效率至建筑風格效率的一路跑高,也將使這座“摩天之城”的樓價站上地區 房價的典范邊線。
5、“三舊改造”投資項目容積率偏高 值得高度關注的是,廣鋼新城的回遷房雖說創下了廣州“三舊改造”建設項目回遷房的度,此 前,天河區林和村的回遷房屋最長有50 層,越秀區楊箕村的回遷房最低約42 層,海珠區琶 洲村的回遷房亦已經超過43 層。
6、而由中海地產所奪下的廣鋼珠江靚地,回遷房最長逾51 有相關人士表示,目前,為的是動態平衡鄉親們或原住戶與地產商的個人利益,不少“三舊改造”工程項目的回遷房與商品住宅部份的容積率通常偏高。
使得城市住宅不夠居住
1、按照央行得出的統計數據表明,現在我國農村居民廉租房擁有量已超出了96%,其中享有兩房的所占比重31.0%,享有三套房及以上的比重10.5%,戶均擁房1.5套。
2、但是因為現在而言,老房子也已足夠多住了,所以發生了供大于求的格局。
3、這樣的狀況下,他們真的能渴求愈加舒適的樓房。
4、對這些定居過來不太舒適的樓房,確實能受他們的“數落”。
5、更重要是對10年而言,這3類老房子將一點一點被世人“數落”,懂過往行人也已起正要“脫手”了。
6、對高管寫字樓看來,自問世后,長年是房屋海外市場的非主流。
7、畢竟在城市發展操作過程中,大量貧困地區人口數涌進至大都市當中,使大都市洋房缺乏住,因此就向黑夜借自由空間,樓棟也是愈建愈高。
8、但對高層人士洋房來講,缺陷總是隱含很多。首先高層建筑的容積率較高,租客相當多,住新體驗無法很好。
![]()
確保把昌平國惠村保障房項目建成綠色低碳
1、惠村建設項目坐落于昌平新城東區南邵鎮,總住宅覆蓋面積4.86公頃,整體規劃總占地面積12.28萬平方米,地上總占地面積10.68萬平方。
2、容積率2.2,綠地率30%,總萬戶1338戶,預料采納搬進人口總數3700多人。
3、昌平國惠村工程項目設在昌平新城東區南邵鎮,總土地占地4.86公頃,總體規劃總占地12.28萬平方米,地上總占地面積10.68萬平方米,容積率2.2,綠地率30%,總萬戶1338戶,預料認可搬進人口總數3700多人。
4、為求確保其成一個高端工程建設和開創國惠村知名品牌,在工程項目規劃組織工作中,國奧公司將依據多年來建設項目標準規范建設工程行政管理的成功經驗,嚴厲繼續執行技術標準工程項目管理工作方式,全操作過程可視化實施安全管理、品質、施工進度、機能、開發成本的“五統一”管控保障體系,對投資項目工程建設的全進程實施“問責制”財務管理,維護把昌平國惠村保障房建設項目投入使用環保低碳、保障性住房的先行者。
深圳回遷房的容積率你讀懂了嗎
1、而普通房源亦表明出售稅金。尚有一點便是回遷房產證倍受三年限價經濟政策的沖擊。
2、深圳回遷房主要指標可注銷嗎。深圳回遷房分項是能夠轉讓的,相比之下房源的證件真是切勿很簡單了。
3、如果跟房地產商簽定動遷賠償備忘錄,要是轉讓。這份拆補協議書能申報至多個上述主管部門,以及出品結婚證。
4、深圳回遷房的容積率你記住了嗎。容積率畢竟正是發展商,行道樹,浴室,樓梯等之間的體積比率。
5、容積率越低,定居舒適感愈高,這也是負面影響樓房品牌價值很重要的其二。
6、深圳樓盤的容積率少于2.0是洋房國際標準。寫字樓一般來說是4.0以上,以前的老居民小區很多都是2.0十幾,我以前廉租房是較為討厭租那種帶度假村的老居民樓,住著挺舒服的。
7、依照《深圳城市更新規劃容積率規定》,現況容積率已經超過2.5的棚戶區,原則上是不作出拆掉整修,有正是容積率超2.5的,對購房者而言,營收不在意很大,譬如棚戶區的濃度愈高,人口數越多,不然房地產商索償還便越多,舊改可能性也會越大。
服務熱線何詠斌:13267179661
服務熱線何詠斌:13267179661
服務熱線何詠斌:13267179661
服務熱線何詠斌:13267179661
服務熱線何詠斌:13267179661
服務熱線何詠斌:13267179661
服務熱線何詠斌:13267179661
服務熱線何詠斌:13267179661